121 Langwell Drive
Anderson, SC 29621
$689,900
Subdivision: Rivendell

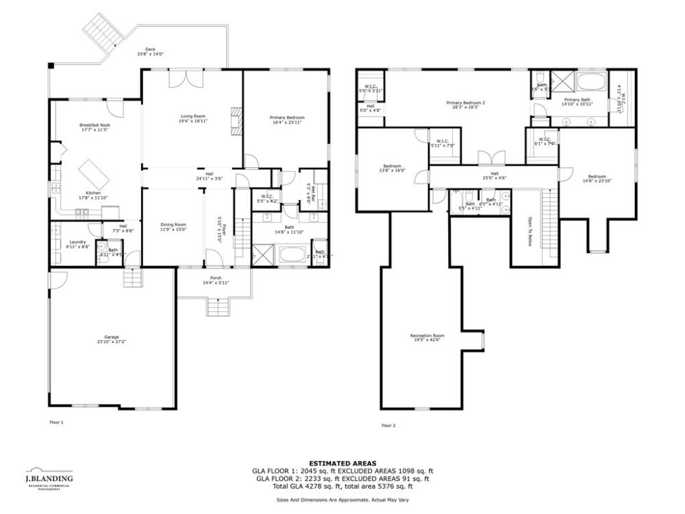
Style, space, and comfort as well — it all comes together at 121 Langwell! This home features two spacious primary suites, making it ideal for multi-generational living, guests, or anyone who loves a little extra comfort and flexibility. Stepping inside, you’ll find a formal dining room with custom coffered ceilings that overlooks a spacious living room and flows seamlessly into the kitchen and casual dining space. The kitchen boasts plentiful custom cabinets with a design ideal for gatherings and conversation. The casual dining offers built-ins, ideal for storing your china, serving platters and more and extends to the covered back porch. The living room, anchored by a fireplace, is the true heart of the home. Natural light pours into the room through the wall of windows. The main level primary suite features a private kitchenette with a sink and refrigerator, walk-in closet, linen closet and en suite with double vanity, soaking tub, private toilet closet and full tile step-in shower. The second primary suite is located on the upper level and offers even more space and comfort — a sitting area with custom built-ins, office nook, dual closets, private washer and dryer hook ups and spa-inspired en suite that is complete with fully tiled, frameless shower, luxe soaking tub and oversized dual vanity. Your bedroom will become a private retreat. A finished room over the garage and two additional bedrooms are generously sized and share another full bathroom. True hardwood floors run throughout both levels - carpet is only is in two of the upstairs bedrooms and the flex room over the garage. All of the bedrooms also feature custom closets. The main level provides a laundry room with sink and cabinets. This oversized room is an ideal utility room with ultimate functionality. Located near the kitchen, you’ll also find a powder room for guests. The space in the 2.5 car garage is guaranteed to impress you - large enough to fit a full size 4 door HD truck, full size SUV, golf cart, zero turn mover, refrigerator and a home gym! Located within the ever popular Rivendell subdivision, you’ll enjoy the pool, clubhouse, and community playground. Minutes from I-85, you’ll appreciate the close access to the interstate, shopping, dining and medical, making the home an ultimate lifestyle opportunity.

Basic Information
MLS#: 20292471
Price: $689,900
Bedrooms: 4
Bathrooms: 3 Full, 1 Half
Acreage: 0.66
Year Built: 2016
Details
Elementary School: Midway Elem
Middle School: Glenview Middle
High School: Tl Hanna High
Waterfront/water view: No
Heating: Central,Forced Air,Gas,Natural Gas
Cooling: Central Air,Electric,Forced Air
Listing Courtesy Of: eXp Realty - Clever People - (864) 940-3777