306 Ritter Lane
Anderson, SC 29621
$342,900
Subdivision: Palmetto Valley

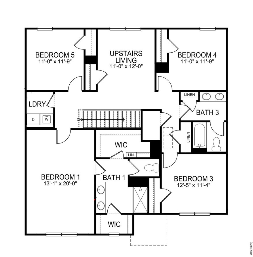
Check out 306 Ritter Lane, a stunning new home in our Palmetto Valley community. This spacious two-story home features five bedrooms, three bathrooms, and a two-car garage, providing plenty of space for all. As you enter, you’ll be greeted by a welcoming foyer that leads into a home office, then opens into the heart of the home. The open-concept layout seamlessly connects the large living room, dining area, and functional kitchen, creating an ideal space for both everyday living and entertaining. The kitchen is equipped with a walk-in pantry, stainless steel appliances, and a center island with a breakfast bar, making it perfect for meal prep and casual gatherings. Also on the first floor, off the living room, is a convenient guest bedroom and a full bathroom, featuring added flexibility. Upstairs, the spacious primary suite features a walk-in closet and an en suite bathroom with dual vanities. The three additional bedrooms share a third full bathroom, providing ample space and privacy for all. The upstairs also includes a loft space, perfect for family entertainment, gaming, or a cozy reading nook. With its luxurious design and thoughtful layout, this home Features both comfort and practicality for modern living. Pictures are representative.

Basic Information
MLS#: 20297522
Price: $342,900
Bedrooms: 5
Bathrooms: 3 Full
Acreage: 0.22
Year Built: 2026
Details
Elementary School: Calhoun Elem
Middle School: Glenview Middle
High School: Tl Hanna High
Waterfront/water view: No
Heating: Central,Forced Air,Gas
Cooling: Central Air,Electric,Forced Air
Listing Courtesy Of: D.R. Horton - (864) 757-9930