568 Seaborn Circle
Pendleton, SC 29670
$249,900 Pending
Subdivision: Champions Village at Cherry Hill

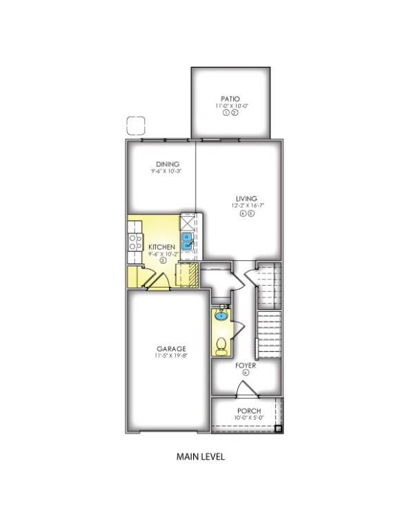
Pritchard A Plan. Discover this exquisite 3-bedroom, 2.5-bath single-family home, designed with modern convenience and elegance in mind. Spanning 1463 square feet, its open floor plan seamlessly blends spaces for effortless living. The main level impresses with a spacious living room, a powder room, and all showcasing designer vinyl flooring. The kitchen delights with granite countertops and an upgraded Moen Brantford faucet, complete with stainless steel appliances including a stove, dishwasher, and microwave. Venture upstairs to find all bedrooms thoughtfully arranged for privacy. The luxurious primary suite is a true retreat, featuring a generous walk-in closet, dual vanity, walk-in shower, and a private water closet. An expansive laundry room enhances convenience on the second floor. Step outside to enjoy the covered back patio, perfect for gatherings or peaceful mornings, complemented by a fully operational irrigation system. Energy efficiency is prioritized with a tankless gas water heater, rigorous HERS energy testing and a third-party rating. Community amenities elevate this property with a newly built large private neighborhood pool, a pavilion with two fireplaces with plentiful seating, and scenic walking paths. This home promises both comfort and a vibrant lifestyle. *PLEASE NOTE that this home is currently under construction. Pictures will be updated upon completion** This home is located in the Champions Village at Cherry Hill Subdivision. **PRICES SUBJECT TO CHANGE WITHOUT NOTICE**

Basic Information
MLS#: 20292131
Price: $249,900
Bedrooms: 3
Bathrooms: 2 Full, 1 Half
Year Built: 2025
Details
Elementary School: Pendleton Elem
Middle School: Riverside Middl
High School: Pendleton High
Waterfront/water view: No
Heating: Central,Gas,Natural Gas,Zoned
Cooling: Central Air,Electric,Zoned
Listing Courtesy Of: JW Martin Real Estate - (864) 722-5558