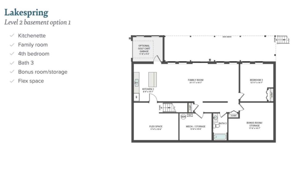
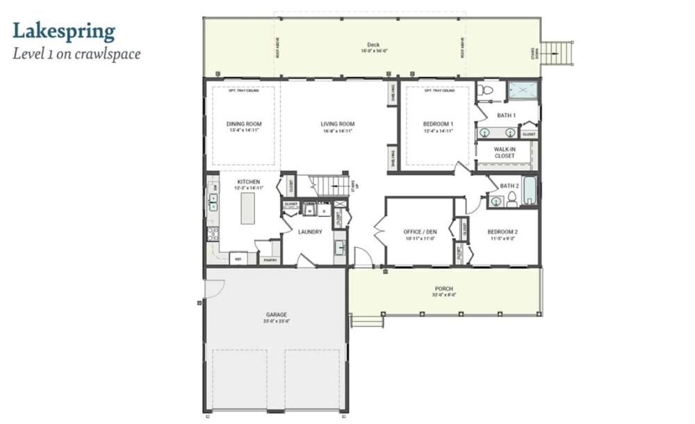
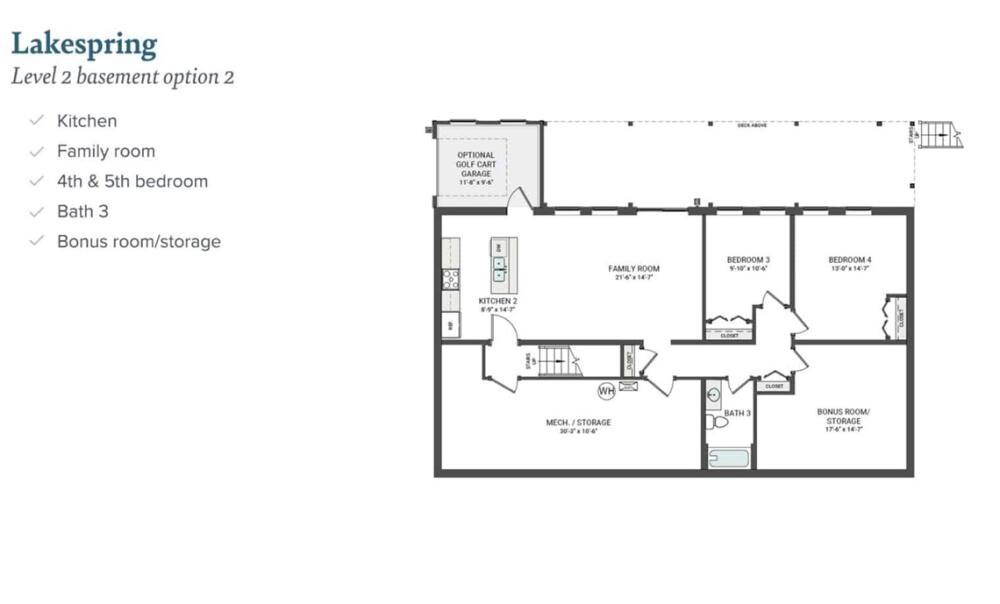
Welcome to 890 Crenshaw St. in the charming historic town of Pendleton, SC! This exquisite modern farmhouse offers a thoughtfully designed layout featuring two bedrooms and an office or third bedroom on the main floor. In addition, the finished walkout basement is planned as Option 2 to hold bedrooms four and five along with a full bath, kitchenette, living room, and theatre room/flex space. Special features include luxury vinyl flooring, sleek granite countertops in the kitchen, and a spacious covered deck and patio creating a private escape to enjoy throughout the year. The finished basement can be tailored to your personal preferences, offering an exit to the rear patio and a separate garage for a golf cart or extra storage. Enjoy a vibrant lifestyle with easy access to the square, where you can indulge in diverse shopping and dining options, as well as participate in community events like concerts, jubilees, and the seasonal farmers market. Act now to personalize the exterior and basement finishes to your taste. This remarkable property will be ready for new owners by the end of November 2025—don’t let this opportunity pass you by!
| MLS#: | 20291622 |
| Price: | $550,000 |
| Bedrooms: | 5 |
| Bathrooms: | 3 Full |
| Acreage: | 0.3 |
| Year Built: | 2025 |
| Elementary School: | Pendleton Elem |
| Middle School: | Riverside Middl |
| High School: | Pendleton High |
| Waterfront/water view: | No |
| Heating: | Heat Pump |
| Cooling: | Heat Pump |
| Listing Courtesy Of: | Keller Williams Clemson - (864) 643-2090 |